|
|
Universidade Federal de Santa Catarina |
||||
Introdução à Física da Radioterapia
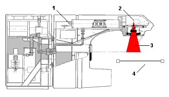
Esquema de um acelerador linear. 1. Fonte de elétrons. 2. Alvo. 3. Feixe de elétrons ou fótons. 4. Mesa de tratamento.

© 2000
Fábio Antonio Schaberle e Nelson Canzian da Silva - Departamento de Física UFSC